
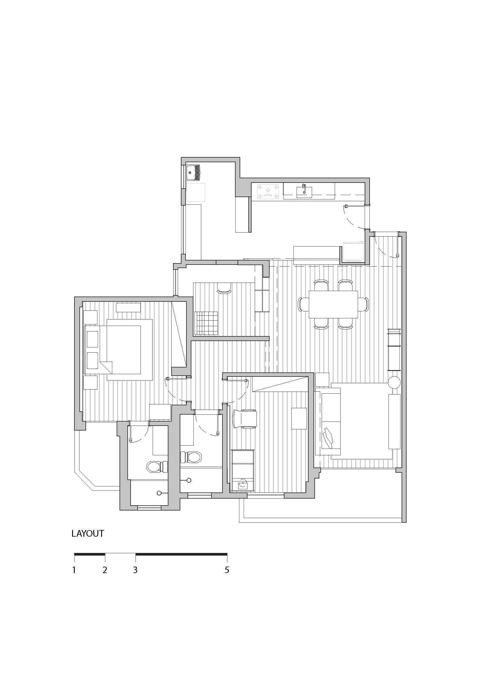
Reforma de um apartamento para um jovem casal em Águas Claras. O apartamento que já tinha seus 20 anos ainda preservava a planta e os materiais especificados pela construtora.
A ideia foi conectar a sala à cozinha e ao antigo quarto de serviço, agora escritório. Para tanto projetamos peças de mobiliário singulares que permitem diferentes possibilidades de uso entre esses espaços. A ideia foi de filtrar a conexão destes espaços com peças que ofereçam funções que complementem as atividades de ambos espaços, atendendo a demandas diferenciadas do dia-a-dia.
O antigo banheiro de empregada foi anexado a área de serviço, tendo em vista que esse já não se fazia mais necessário. Isso possibilitou que o varal e o tanque ficassem mais escondidos do olhar de quem se encontra nas áreas sociais.
Em relação ao materiais, especificamos um piso vinílico para toda área íntima. O piso será aplicado sobre a cerâmica existente, diminuindo a geração de entulho e material na obra.
Autor: Hugo Leonardos








