

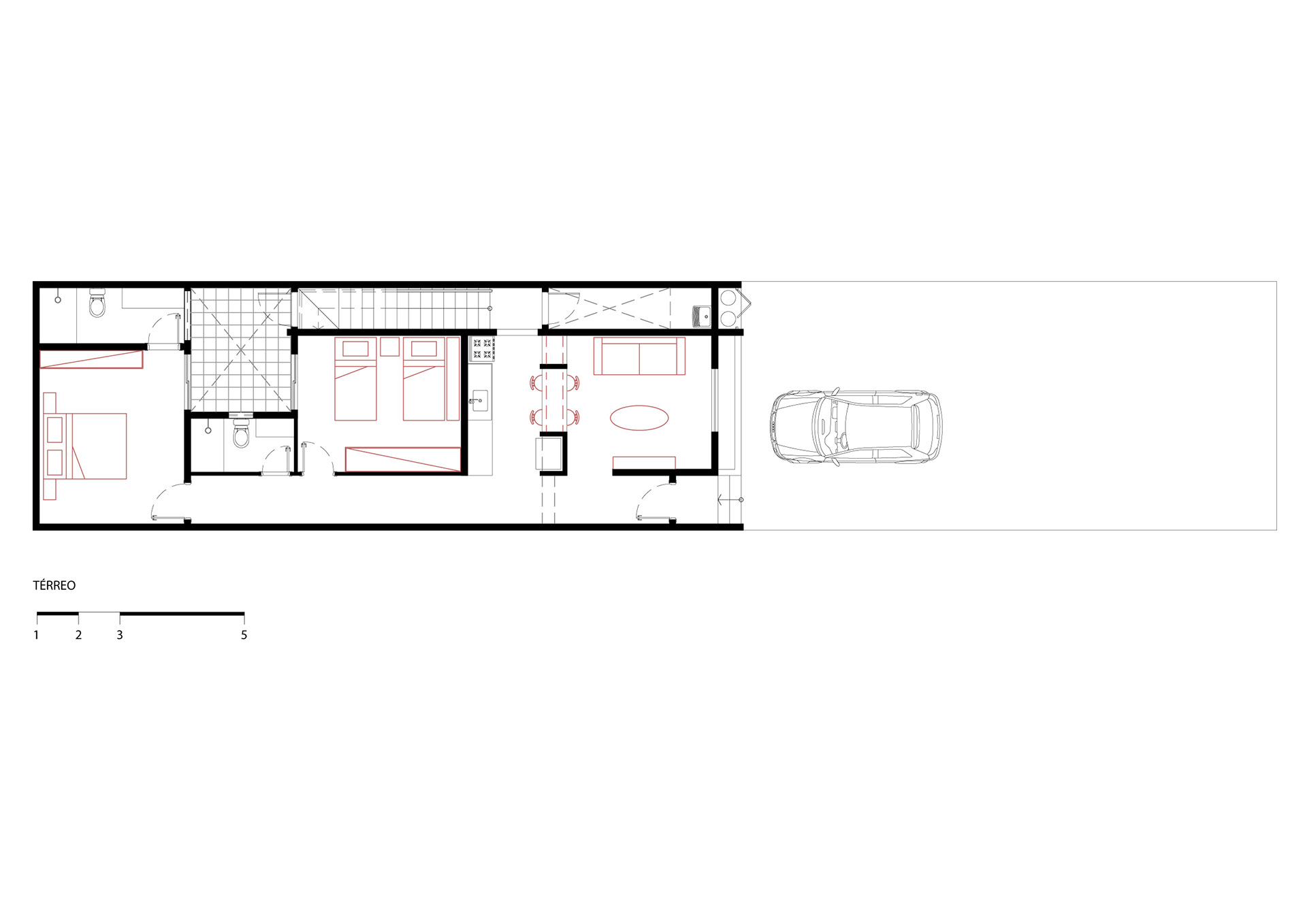
Estudo Preliminar de uma residência no Jardim ABC, Cidade Ocidental (GO). Situada em um lote de 6x30m a residência de 86m² tem seu eixo de circulação bem definido, buscando otimizar o espaço limitado.
A Casa é marcada por duas empenas laterais que delimitam a área social da área de serviço. Na fachada a veneziana vermelha esconde o gabinete de GLP e os relógios de luz e água.
Foi criado um pátio central para suprir a falta de ventilação e iluminação natural dos quartos e banheiros. No caso da cozinha, utilizou-se um sistema tipo shed na cobertura.
A Casa é marcada por duas empenas laterais que delimitam a área social da área de serviço. Na fachada a veneziana vermelha esconde o gabinete de GLP e os relógios de luz e água.
Foi criado um pátio central para suprir a falta de ventilação e iluminação natural dos quartos e banheiros. No caso da cozinha, utilizou-se um sistema tipo shed na cobertura.





