
A casa se localiza em um terreno de 25x12 metros, em condormínio privado, na região de Valparaíso.
A área social da casa é marcada por duas paredes que avançam na fachada, protegendo as aberturas da iluminação poente e trazendo certa imponência para o
acesso social.
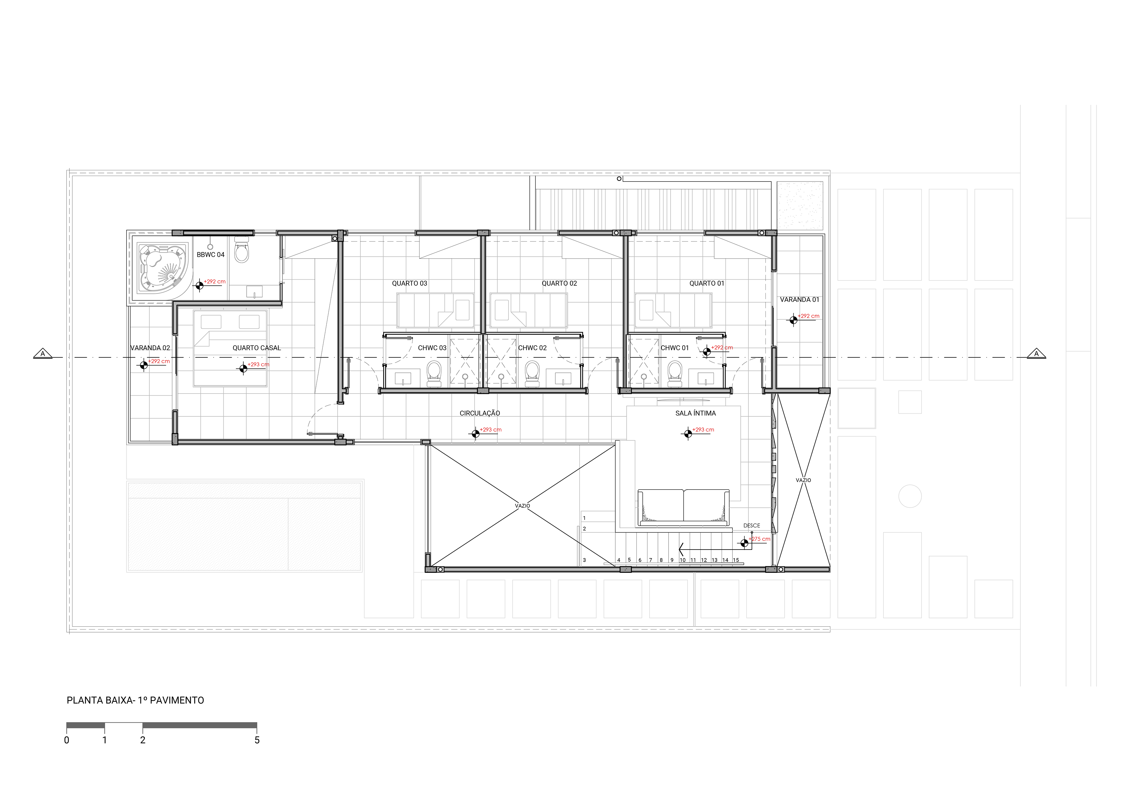
Já a área íntima, tem um beiral por sua volta que, além de cobrir as varandas, aproxima a escala do usuário.
A área social da casa é marcada por duas paredes que avançam na fachada, protegendo as aberturas da iluminação poente e trazendo certa imponência para o
acesso social.
Já a área íntima, tem um beiral por sua volta que, além de cobrir as varandas, aproxima a escala do usuário.
A casa se acomoda no terreno acompanhando o seu caimento em direção à área de lazer.
Os quartos no piso superior têm suas janelas voltadas para o sol nascente
e suas suítes iluminadas por meio de claraboias na área do box.
Os quartos no piso superior têm suas janelas voltadas para o sol nascente
e suas suítes iluminadas por meio de claraboias na área do box.







