

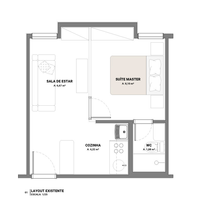
A quitinete apresentava uma configuração de layout bastante comum, na qual a sala e o quarto eram separados por uma parede de drywall. É uma configuração que busca de certa forma proteger a intimidade do quarto das visitas, porém pouco realista, já que neste caso as visitas precisam passar pelo quarto pra chegar no banheiro... Verdade seja dita, na maior parte do tempos são os moradores que vivenciam o espaço então por que se limitar à um espaço reduzido na espera de uma visita quando podemos usufruir em sua plenitude? Buscamos solucionar isso criando uma divisória de correr onde é possível integrar ou separar os espaços quando for conveniente. Além disso a cozinha foi ampliada e modernizada, substituímos o tanque pela máquina de lavar, o cooktop pelo fogão de piso e o frigobar pela geladeira. A troca de equipamentos só foi possível depois de uma análise detalhada e um novo layout







